
3 Camere Ideal Familie -Bloc Intim
Bucuresti, Theodor Pallady
117.724€ + TVA
Camere
3
Suprafata utila
74.57 mp
Suprafata construita
97.58 mp
Etaj
Etaj 1
Bai
2
An constructie
2026
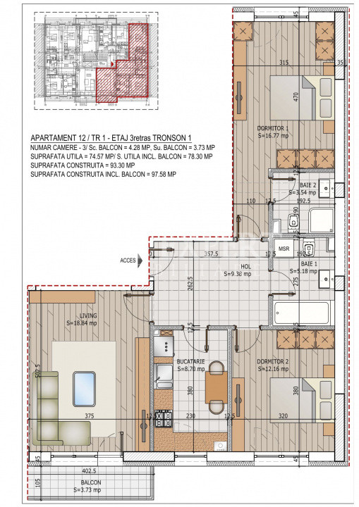
- ID:P5323
- Nr. camere:3
- Nr. dormitoare:2
- S. utila:74.57 mp
- S. balcoane:3.73 mp
- S. utila totala:78.30 mp
- S. construita:97.58 mp
- Comp.:Decomandat
- Etaj:Etaj 1
- Nr. bucatarii:1
- Nr. bai:2
- Nr. balcoane:1
- An constructie:2026
- Structura:Beton
- Tip imobil:Bloc
- Regim inaltime:P+3
Descriere
Oferta noastra completa o gasiti pe site-ul Best Expert Imobiliare
Birou vanzari dezvoltator Titan-Pallady Comision 0%
- 117.724 Euro + TVA pentru un avans de 80 % la antecontract
- 121.365 Euro + TVA pentru un avans de 15 % la antecontract
Descoperă noile apartamente situate într-un ansamblu rezidențial modern, construit de unul dintre cei mai experimentați dezvoltatori din zonă, cu peste 14 blocuri finalizate cu succes în Sectorul 3.
Imobilul este amplasat într-o zonă rezidențială liniștită, ideală pentru cei care caută confort și intimitate, dar în același timp doresc să rămână aproape de oraș. Locația oferă acces rapid către centrul Bucureștiului și autostrada A2, fiind la doar 12–14 minute de mers pe jos până la stația de metrou Nicolae Teclu. În apropiere se regăsesc cele mai importante puncte de interes din partea de est a orașului: IKEA, Auchan, Lidl, Metro, Decathlon, JYSK, Mega Image, Dedeman, Leroy Merlin, Jumbo și multe altele.
Caracteristici ale apartamentelor:
Se predau la cheie, complet racordate la toate utilitățile publice: apă, gaz, electricitate și canalizare;
Dispun de centrală termică proprie în condensare, pentru eficiență energetică și controlul temperaturii;
Finisaje incluse, la alegere: parchet, uși de interior, gresie și faianță;
Ușă metalică de acces și băi complet utilate, gata de folosire;
Complexul beneficiază de acces privat, cu poartă electrică acționată prin telecomandă, oferind un plus de siguranță și intimitate.
Ansamblul este situat într-un cartier 100% rezidențial, ideal pentru familii, tineri profesioniști sau oricine își dorește un cămin modern într-o zonă verde și liniștită, dar bine conectată la viața urbană.
Contactează-ne pentru mai multe detalii sau pentru a programa o vizionare!
Citeste mai mult
Birou vanzari dezvoltator Titan-Pallady Comision 0%
- 117.724 Euro + TVA pentru un avans de 80 % la antecontract
- 121.365 Euro + TVA pentru un avans de 15 % la antecontract
Descoperă noile apartamente situate într-un ansamblu rezidențial modern, construit de unul dintre cei mai experimentați dezvoltatori din zonă, cu peste 14 blocuri finalizate cu succes în Sectorul 3.
Imobilul este amplasat într-o zonă rezidențială liniștită, ideală pentru cei care caută confort și intimitate, dar în același timp doresc să rămână aproape de oraș. Locația oferă acces rapid către centrul Bucureștiului și autostrada A2, fiind la doar 12–14 minute de mers pe jos până la stația de metrou Nicolae Teclu. În apropiere se regăsesc cele mai importante puncte de interes din partea de est a orașului: IKEA, Auchan, Lidl, Metro, Decathlon, JYSK, Mega Image, Dedeman, Leroy Merlin, Jumbo și multe altele.
Caracteristici ale apartamentelor:
Se predau la cheie, complet racordate la toate utilitățile publice: apă, gaz, electricitate și canalizare;
Dispun de centrală termică proprie în condensare, pentru eficiență energetică și controlul temperaturii;
Finisaje incluse, la alegere: parchet, uși de interior, gresie și faianță;
Ușă metalică de acces și băi complet utilate, gata de folosire;
Complexul beneficiază de acces privat, cu poartă electrică acționată prin telecomandă, oferind un plus de siguranță și intimitate.
Ansamblul este situat într-un cartier 100% rezidențial, ideal pentru familii, tineri profesioniști sau oricine își dorește un cămin modern într-o zonă verde și liniștită, dar bine conectată la viața urbană.
Contactează-ne pentru mai multe detalii sau pentru a programa o vizionare!
Specificatii
Curent
Apa
Canalizare
Gaz
CATV
Acces internet
Fibra optica
Utilitati in zona
Centrala proprie
Calorifere
Izolatie Exterior
Bloc izolat termic
Vopsea lavabila
Faianta
Parchet
Gresie
Ferestre Termopan
Usa intrare Metal
Usa interior Lemn
Apometre
Contor gaz
Interfon
Mihai Calinescu
0733014212
Esti interesat de aceasta proprietate ?