




Casă tip duplex de vânzare – Lunca Priporului, Sector 3
Bucuresti, Theodor Pallady
300.000€
Camere
4
Suprafata utila
116 mp
Bai
4
An constructie
2027
- ID:P5348
- Nr. camere:4
- Nr. dormitoare:3
- S. utila:116.00 mp
- S. terase:31.40 mp
- S. utila totala:147.40 mp
- S. teren:227.83 mp
- Nr. bai:4
- Nr. balcoane:2
- Nr. parcari:2
- An constructie:2027
- Structura rezistenta:Beton
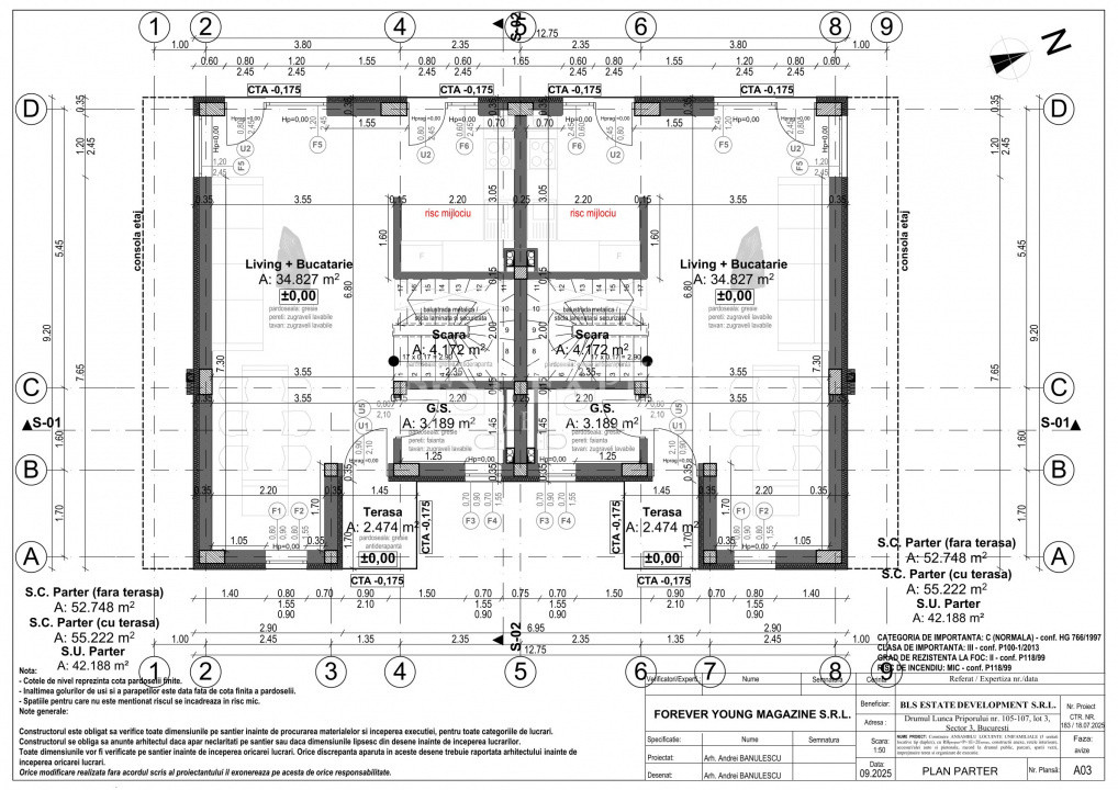
- Regim inaltime:P+2
Descriere
Casă tip duplex modernă, situată pe Lunca Priporului, într-o zonă rezidențială liniștită din Sector 3, aflată în plină dezvoltare.
Proprietatea este ideală pentru o familie care își dorește confort, compartimentare eficientă și acces rapid către oraș.
🏡 Regim de înălțime: Parter + 2 Etaje
📐 Suprafață teren: 239.671 mp -Parcela 4 /Parcela 5
🚗 Locuri de parcare: 2 (în curte)
📆 Termen de finalizare: septembrie
🔹 Compartimentare funcțională și modernă
Parterul este dedicat zonei de zi și oferă:
living spațios cu bucătărie open-space
grup sanitar
acces către o terasă
Etajul 1 este zona de noapte principală și include:
2 dormitoare luminoase
2 băi cu geam natural, pentru ventilație și lumină optimă
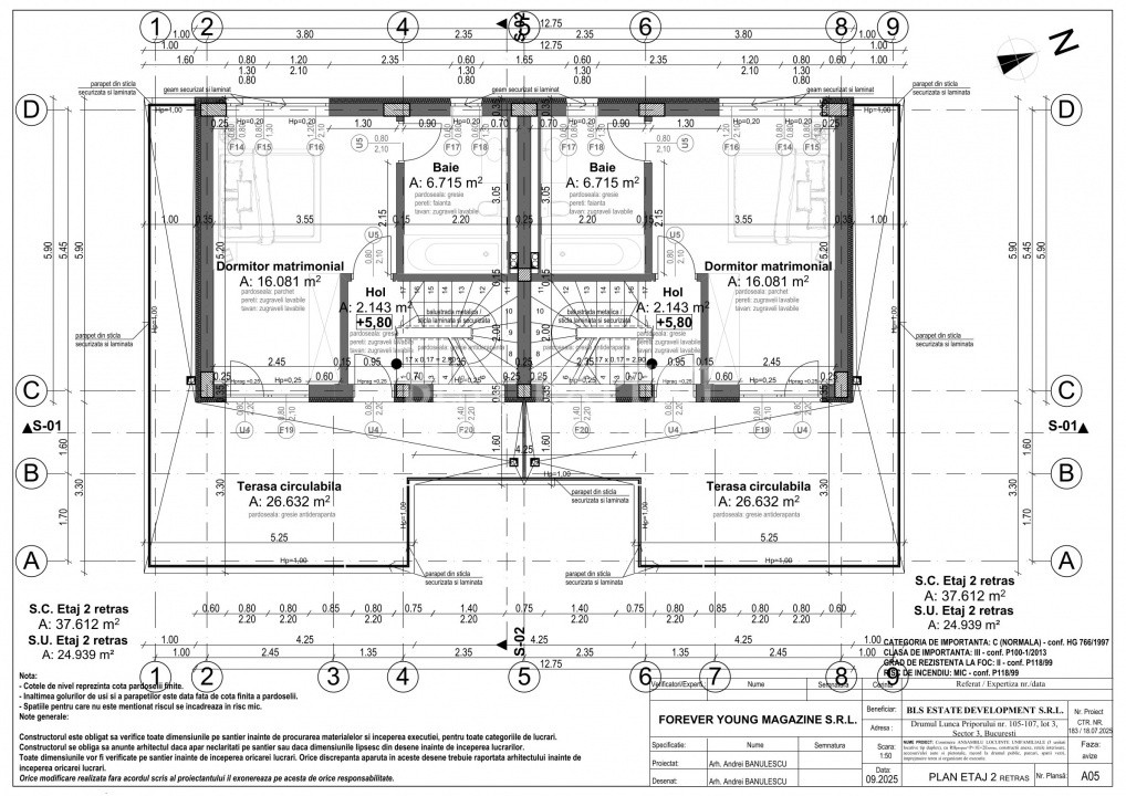
Etajul 2 oferă intimitate și versatilitate:
1 dormitor spațios
1 baie cu geam natural
terasă generoasă, un mare atu al proprietății, ce poate fi amenajată ca:
zonă lounge sau relaxare
spațiu pentru cafeaua de dimineață sau seri liniștite
grădină urbană / zonă verde
spațiu pentru sport, yoga sau hobby-uri în aer liber 🌿
📍 Localizare & acces
Imobilul este situat într-o zonă aerisită, cu construcții noi, specifică dezvoltărilor rezidențiale moderne din Sector 3.
🚇 Acces facil către metrou, stațiile Nicolae Teclu și 1 Decembrie 1918, aflate la distanță rezonabilă.
🚌 Transport public disponibil în apropiere, cu legături rapide către principalele zone ale orașului.
🚗 Acces rapid către artere importante și zone comerciale.
🌳 Despre zonă
Zona Lunca Priporului este în continuă dezvoltare, oferind liniște, aer mai curat și potențial de creștere a valorii imobiliare. Este ideală pentru familii care caută o locuință modernă într-un cadru rezidențial.
Pentru detalii iti stam la dispozitie!
Citeste mai mult
Proprietatea este ideală pentru o familie care își dorește confort, compartimentare eficientă și acces rapid către oraș.
🏡 Regim de înălțime: Parter + 2 Etaje
📐 Suprafață teren: 239.671 mp -Parcela 4 /Parcela 5
🚗 Locuri de parcare: 2 (în curte)
📆 Termen de finalizare: septembrie
🔹 Compartimentare funcțională și modernă
Parterul este dedicat zonei de zi și oferă:
living spațios cu bucătărie open-space
grup sanitar
acces către o terasă
Etajul 1 este zona de noapte principală și include:
2 dormitoare luminoase
2 băi cu geam natural, pentru ventilație și lumină optimă
Etajul 2 oferă intimitate și versatilitate:
1 dormitor spațios
1 baie cu geam natural
terasă generoasă, un mare atu al proprietății, ce poate fi amenajată ca:
zonă lounge sau relaxare
spațiu pentru cafeaua de dimineață sau seri liniștite
grădină urbană / zonă verde
spațiu pentru sport, yoga sau hobby-uri în aer liber 🌿
📍 Localizare & acces
Imobilul este situat într-o zonă aerisită, cu construcții noi, specifică dezvoltărilor rezidențiale moderne din Sector 3.
🚇 Acces facil către metrou, stațiile Nicolae Teclu și 1 Decembrie 1918, aflate la distanță rezonabilă.
🚌 Transport public disponibil în apropiere, cu legături rapide către principalele zone ale orașului.
🚗 Acces rapid către artere importante și zone comerciale.
🌳 Despre zonă
Zona Lunca Priporului este în continuă dezvoltare, oferind liniște, aer mai curat și potențial de creștere a valorii imobiliare. Este ideală pentru familii care caută o locuință modernă într-un cadru rezidențial.
Pentru detalii iti stam la dispozitie!
Specificatii
Curent
Apa
Canalizare
Gaz
CATV
Acces internet
Fibra optica
Utilitati in zona
Centrala proprie
Incalzire pardoseala
Izolatie Exterior
Bloc izolat termic
Vopsea lavabila
Faianta
Parchet
Gresie
Ferestre PVC
Usa intrare Metal
Usa interior Lemn
WC Serviciu
Apometre
Contor gaz
Curte
Mihai Calinescu
0733014212
Esti interesat de aceasta proprietate ?