




3 Camere Ideal Familie Comision 0%
Bucuresti, Theodor Pallady
115.702€ + TVA
Camere
3
Suprafata utila
65.84 mp
Etaj
Etaj 1
Bai
2
An constructie
2027
- ID:P5533
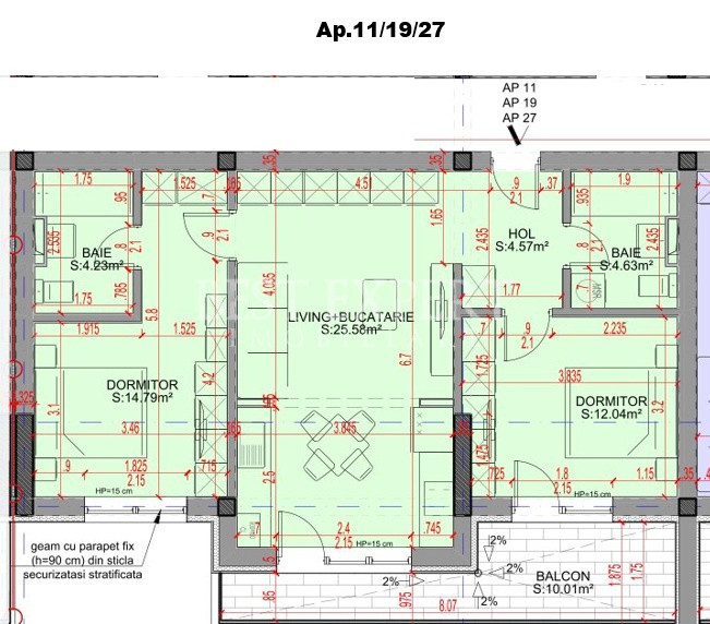
- Nr. camere:3
- Nr. dormitoare:2
- S. utila:65.84 mp
- S. balcoane:10.01 mp
- S. utila totala:75.85 mp
- Comp.:Decomandat
- Etaj:Etaj 1
- Nr. bucatarii:1
- Nr. bai:2
- Nr. balcoane:1
- An constructie:2027
- Structura:Beton
- Tip imobil:Bloc
- Regim inaltime:P+3
Descriere
Oferta noastra completa o gasiti pe site-ul www.efy-residence.ro
Birou vanzari dezvoltator Titan-Pallady Comision 0%
Pret proprietate:
-115.702 Euro TVA 21% inclus
Parcare:7.000 Euro +TVA
Pozitionare : zona Theodor Pallady
Tip proprietate - 3 camere
Tip imobil - D+P+3 etaje
Total unitati ansamblu - 108 unitati
Termen Finalizare - Iunie 2027
Suprafata utila - 65.84 mp utili +10.01 mp balcon, total 75.85 mp utili
Utilitati publice - curent, apa, canalizare, gaz
Distanta mijloace de transport in comun:
- 10 minute metrou Nicolae Teclu
Dotari
-centrala proprie
-incalzire in pardoseala
-vas toaleta sistem gheberit
-finisaje la alegere
Sediu: Drumul Gura Crivatului, nr. 4-22, Sector 3
Waze: Best Expert Imobiliare
Telefon Programari: 0741.531.808
Program vizionari: L-V 10:00-18:00 / S: 10:00-14:00
Facebook /Instagram/ TikTok - Best Expert Imobiliare
Citeste mai mult
Birou vanzari dezvoltator Titan-Pallady Comision 0%
Pret proprietate:
-115.702 Euro TVA 21% inclus
Parcare:7.000 Euro +TVA
Pozitionare : zona Theodor Pallady
Tip proprietate - 3 camere
Tip imobil - D+P+3 etaje
Total unitati ansamblu - 108 unitati
Termen Finalizare - Iunie 2027
Suprafata utila - 65.84 mp utili +10.01 mp balcon, total 75.85 mp utili
Utilitati publice - curent, apa, canalizare, gaz
Distanta mijloace de transport in comun:
- 10 minute metrou Nicolae Teclu
Dotari
-centrala proprie
-incalzire in pardoseala
-vas toaleta sistem gheberit
-finisaje la alegere
Sediu: Drumul Gura Crivatului, nr. 4-22, Sector 3
Waze: Best Expert Imobiliare
Telefon Programari: 0741.531.808
Program vizionari: L-V 10:00-18:00 / S: 10:00-14:00
Facebook /Instagram/ TikTok - Best Expert Imobiliare
Specificatii
Curent
Apa
Canalizare
Gaz
CATV
Acces internet
Fibra optica
Utilitati in zona
Centrala proprie
Incalzire pardoseala
Izolatie Exterior
Bloc izolat termic
Vopsea lavabila
Faianta
Parchet
Gresie
Ferestre Termopan
Usa intrare Metal
Usa interior Lemn
Apometre
Contor gaz
Interfon
Lift
Aurel Stancu
0741531808
Esti interesat de aceasta proprietate ?